中国竞彩网首页触屏版|球探比分即时足球比分官网手机|球探篮球即时比分|捷报比分足球即时比分安卓ruo,球探比分足球即时比分手机,球探足球即时比分足球比分app,球探比分即时足球比分平遥古城

當前位置:深圳新聞網首頁 > 深圳新聞 > 圖片深圳 > 

蓮花山公園山頂公廁突然被拆遭吐槽 原址將建新公廁設計圖亮了

2018-11-02 21:49來源:深圳新聞網

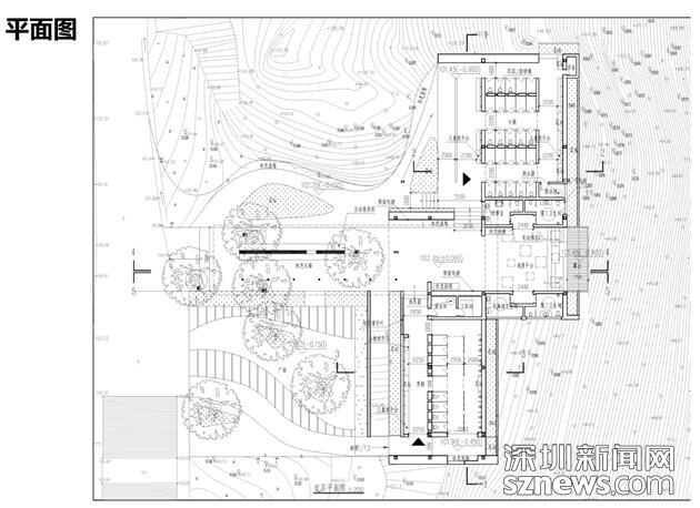
蓮花山公園山頂公共廁所原址重建設計平面圖(深圳市城管局提供)

記者了解到,原址重建的公廁將在部分男女衛(wèi)生間廁格設助老設施和折疊嬰兒座椅,廁格外設有空置提示燈。母嬰室內設有溫奶器、護理臺,第三衛(wèi)生間的布置考慮了父親帶女童、母親帶男童及成年子女帶行動不便的父母等多層面如廁需求。

公廁建筑層高4.5米,能夠較好的保證自然通風、室內采光和視線通透,在滿足私密性的前提下引景入室,同時還利用燈光和背景音樂營造廁所優(yōu)雅靜謐的環(huán)境和氛圍,并采用中水回收裝置,提高水資源綜合利用水平。休息長廊具有避雨及等候功能,同時設有自動售賣機、手機充電插座、垃圾分類回收、休息座椅等便民設施,東側設有觀景臺。

情況說明稱,“目前,蓮花山公園山頂公廁已移交市建筑工務署負責建設,預計2018年底建成并投入使用。今后將按照高標準管理和維護,為市民游客提供優(yōu)質服務?!?/p>

[責任編輯:鄭曉鵬]

新聞評論